atelier bill architects homearchitecturegraphic designpracticetheorynews / extracivic & cultureeducationhealthcare & researchindustrial & officeproduct designresidential
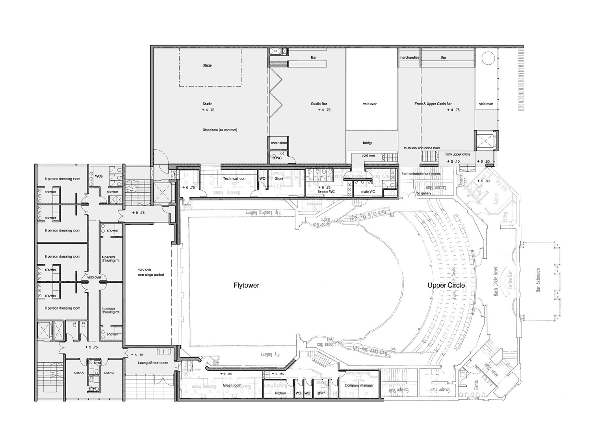
belfast opera house  Prior to establishing 'atelier-bill' Architects, the Principal Architect was involved with the initial Planning as Lead Design Project Architect to RIBA stage C of the Belfast Opera House.  The focused and efficient planning proved the preferable option adopted, with a creative section to maximise the interaction between spaces. belfast opera house
atelier bill architects 32 prince of wales road norwich nr1 1lg. www.atelier-bill.com architects@atelier-bill.com tel. +44 [0]1603 461 171 richard rogers exhibitionpecha-kucha night norwich

copyright atelier bill

e-mail contact atelier bill

twitterfacebook

3218